Your place on the greens

1402 W Muirlands Dr

La Jolla CA

$9,900,000

$2,857 /sq ft

Overview

Bedroom

6

Bath

5

Year Built

1950

Parking

Sqft

3,465 sqft

Property Type

SingleFamily

Property Description

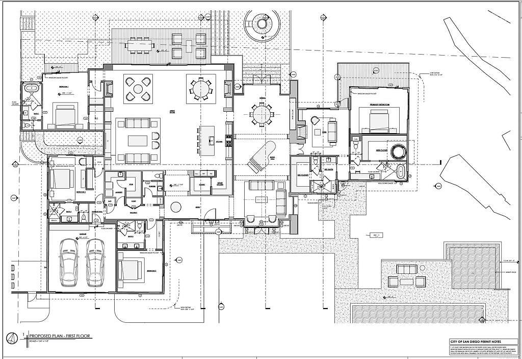
The most spectacular development opportunity in La Jolla...offered with plans for a one-of-a-kind estate of almost one-acre! This is the largest home lot on the La Jolla Country Club, offering extraordinary privacy, ocean and golf views, and many rare mature trees integrated into the final design. There is no other lot like this in La Jolla, with over 380-feet of property line shared with the golf course. Designed by renowned architect Andy Fotch of Will & Fotsch, plans are included to build a 7500 square foot main house, plus a 1400 square foot casita pool house…and garage parking for four cars. The design creates a sprawling ranch home, with almost all rooms on one level, that is literally immersed within the golf course, and cannot be replicated. The main house is designed with a 20-foot high great-room wall of glass facing north as the centerpiece, with views of 7 golf holes and the ocean. The entire home offers panoramic views from almost every room. The landscape design features a beautiful private pool, large jacuzzi spa, two fire pits, alfresco dining, and backyard deck for entertaining. The design includes a glorious fitness and recreation room, a caretaker unit, a wine cellar, and several options for spectacular offices. The site will allow for a basketball court between the two garages. The master suite is designed to be a private sanctuary with its own den, and his & her separate bathroom/closets. La Jolla’s finest estate awaits…a developer’s dream opportunity, or a homeowner’s chance to purchase and build their own dream at wholesale. Call to arrange a tour of the property and a detailed review of the plans.

Listed by: Kevin Hayes of West Point Investment Corp

Features & Amenities

  • All Bedrooms Up

Location

Local Businesses