Your place on the greens

369 La Serena Loop

Horseshoe Bay TX

$3,499,000

$711 /sq ft

Overview

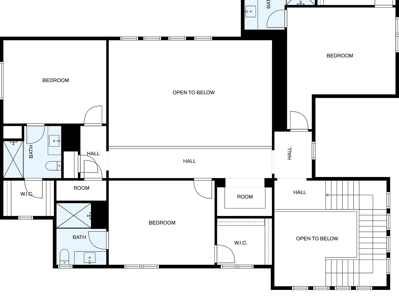
Bedroom

5

Bath

6

Year Built

2025

Parking

Sqft

4,920 sqft

Property Type

SingleFamily

Property Description

Stunning new home built by Bentley Custom Homes, and perched upon Pecan Creek overlooking the #18 golf hole at Escondido Golf and Lake Club. This is a great opportunity to buy one of the best locations in Escondido, with a newly constructed home with incredible views of the golf course. The home features a spa like master bathroom with a huge closet, Wolf range and Sub Zero refrigerators, an incredible wine room and display in the dining room, a beautiful back porch with a fireplace overlooking Pecan Creek. Escondido Golf and Lake Club offers a unique lifestyle opportunity to own a private 18-hole Tom Fazio designed golf course, an exceptional clubhouse, as well as access to one of the finest lakes in Texas via Escondido’s Lake Club and Marina. Come view this property for yourself and experience all that Escondido and the Hill Country of Texas has to offer!

Listed by: Kirby A Myers of Myers Realty Company,LLC

Features & Amenities

Location

Local Businesses