
5435 Grove Mnr
Lady Lake, Florida
$410,000
$225/sqft
Overview
Bedroom
3
Bath
2
Year Built
1999
Sqft
1,821
Property Type
SINGLE_FAMILY
Description
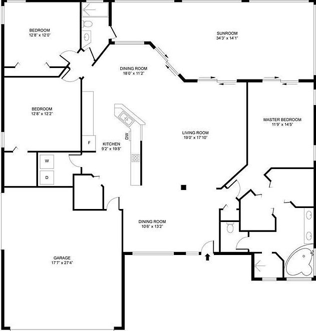
FALL IN LOVE WITH THIS AMAZING GOLF FRONTAGE HOME! This guard gated community offers extra-security, with sidewalks for your walking pleasure, an amazing golf course and lots of natural views! Room for the entire family is found in this spacious 1821sf, 3 bedroom 2 bath home with plenty of room for all of your vehicles AND your golf cart! The extra-long driveway leads you to this "move in ready" home. From your front porch, enter into a foyer that leads to a huge living room and separate dining area. The large kitchen with dinette area comes complete with a refrigerator, smooth top range, dishwasher & disposal. Storage isn't an issue with ton of cabinet space and a walk in pantry. Glass sliding doors lead you to the expansive lanai under roof with spectacular views of the surrounding nature and amazing golf course! The split bedroom design is always a plus for guest privacy. The Primary Suite features two large walk in closets and glass sliding doors to the screened porch. The Primary Bath includes a double vanity, separate glass walk in shower & water closet plus a garden soaking tub for your "bubble bath" relaxation! The secondary bedrooms are also large and share the guest bath with raised vanity with glass walk-in shower and door leading to lanai! The inside laundry room includes the washer and dryer. Enjoy the benefit of no rear neighbors and backing up to the 2nd hole on the scenic golf course...Sturdy block/stucco construction! Low HOA with no mandatory social membership required! Minutes to The Villages, shopping, recreation, restaurants and great commute area! This terrific buy is ready for immediate occupancy! HURRY...WON'T LAST! Schedule appointment today!
Listed by REAL BROKER, LLC
Features & Amenities
- Ceiling Fan(s)
- Eating Space In Kitchen
- Open Floorplan
- Walk-In Closet(s)
Location
Buy with the best & sell with confidence
Find a recommended local agent.
