
20700 Pelton Place
Leavenworth, Washington
$225,000
Overview
Property Type
LOT
Description
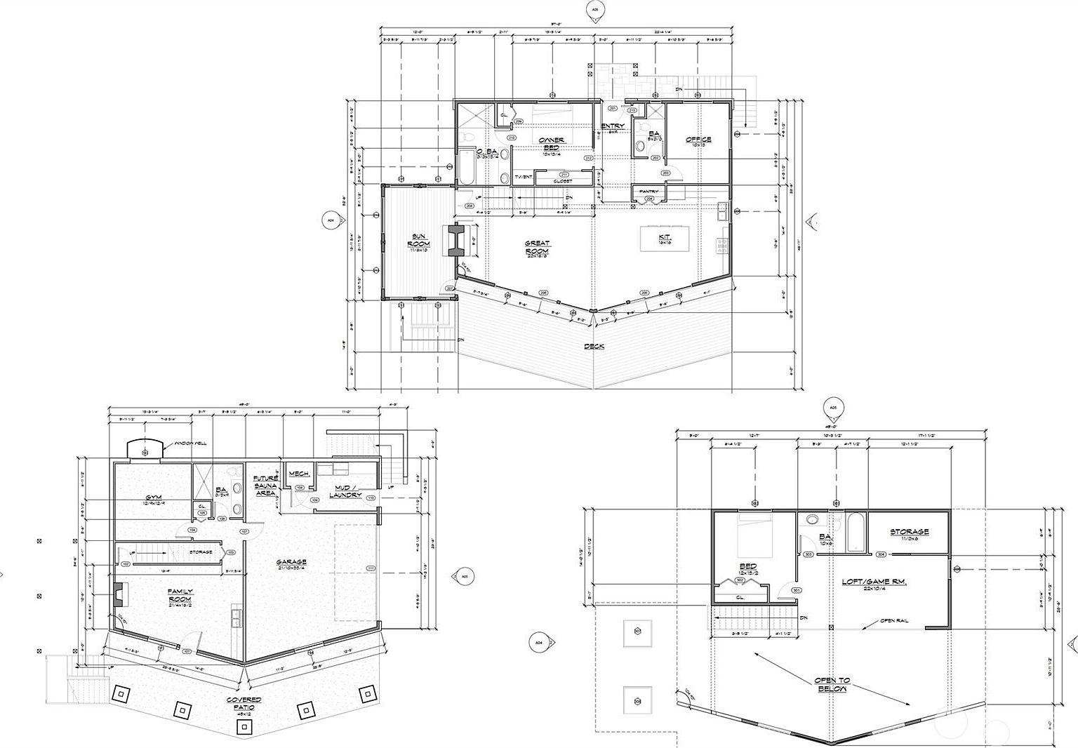
Builder Ready view lot in Kahler Glen. Amazing golf course opportunity, perfectly situated near the 15th tee, walk out your door & right on to the green! Soaring mountain views from every angle, community club house, great restaurant & short distance to Lake Wenatchee, Fish Lake & Steven's Pass. All the utilities available on the street and approved plans by Chelan County and HOA. Designed to build a beautiful 3-level 3,600 square foot mountain chalet, 3 bedrooms, 4 bathrooms, open living space with view window wall, large loft, sunroom bunk room, gym, mud room, and a mother-in-law suite. Kahler Glen is STR approved within the permitting process of Chelan County without a cap.
Listed by BHHS Leavenworth&Cascade Prop
Location
Buy with the best & sell with confidence
Find a recommended local agent.
