
1800 Dunbar Way
Florence, Oregon
$647,400
$327/sqft
Overview
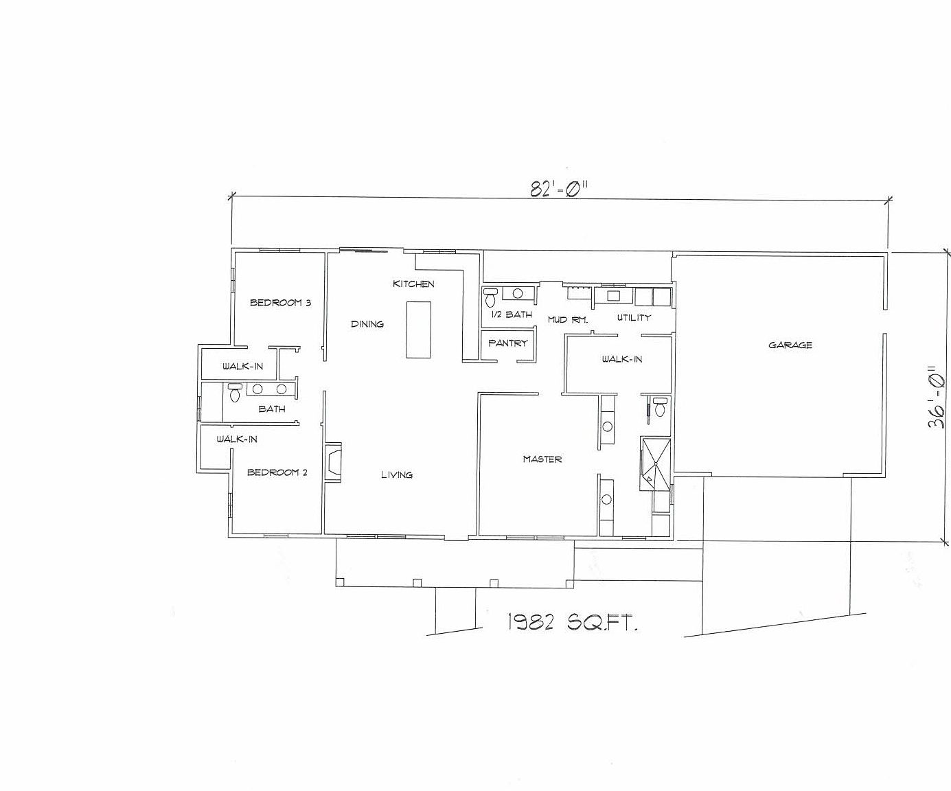
Bedroom
3
Bath
2
Year Built
2022
Sqft
1,982
Property Type
SINGLE_FAMILY
Description
Exciting news! Construction is about to begin on a beautiful new custom home located in the exclusive and highly sought-after Fairway Estates Development. This stunning residence offers three bedrooms and two bathrooms, designed with meticulous attention to detail.The centerpiece of the home is an open great room, creating a spacious and inviting atmosphere for relaxation and entertainment. The kitchen boasts elegant quartz countertops, which can also be found in the bathrooms and laundry room, adding a touch of luxury and sophistication. Stainless steel kitchen appliances complement the stylish design, while custom cabinets provide ample storage space.The primary suite is a true highlight, featuring custom finishes and thoughtful design elements that enhance both comfort and aesthetics. You can look forward to enjoying a tranquil retreat within your own home.The home offers a large porch and an oversized patio, providing ample space for outdoor gatherings and enjoyment. High ceilings add to the sense of grandeur and spaciousness, while a heat pump ensures efficient heating and cooling.The construction of this home is of excellent quality, with a focus on delivering a long-lasting and well-crafted residence. You can expect attention to detail and premium materials throughout.Sample photos of homes previously built by this reputable builder are available for your reference, showcasing their commitment to exceptional craftsmanship and design.Opportunities like this don't last long in sought-after developments like Fairway Estates. Don't miss your chance to own this amazing home that combines luxury, comfort, and quality. Act swiftly to secure your dream home before it's too late.
Listed by Coldwell Banker Coast Real Est
Features & Amenities
- High Ceilings
- Quartz
Location
Buy with the best & sell with confidence
Find a recommended local agent.
